Nutcracker
$285,000 Exclusive New Listing!
Entry-Level Houseboat Nutcracker – Category 4 Houseboat
Exclusive to Lake Eildon Boat Sales!
Nutcracker presents an excellent opportunity to secure a well-maintained, renovated Category 4 houseboat at Eildon Boat Club. Built in 1975 and thoughtfully updated, this houseboat offers practical accommodation, reliable mechanicals, and an easy single-level layout ideal for relaxed family use.
Measuring 45 ft x 16.1 ft, Nutcracker delivers a balanced footprint that suits both first-time buyers and experienced owners seeking a manageable, proven platform. The boat slipped in October 2024, providing recent reassurance on hull condition and ongoing maintenance.
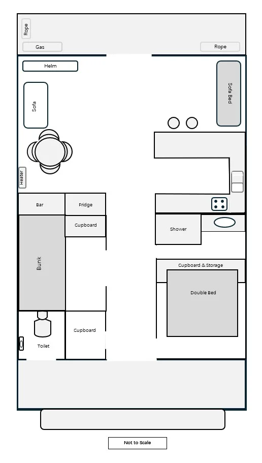
The interior layout includes two bedrooms and accommodation for up to six guests, supported by one bathroom and a seperate toilet. A dedicated living area creates a comfortable central space for dining and relaxation, while the single-level design ensures easy movement throughout the vessel.
Level 1 has a fully enclosed dining area with flyscreens, that make life easy all summer!
Power comes from a 4-cylinder Volvo Penta engine, known for reliability and straightforward servicing. Spacious front and rears decks provide great, usable outdoor space for entertaining, fishing, or simply enjoying time on the lake.
With renovations already completed, Nutcracker allows new owners to step straight into ownership without immediate upgrade requirements. The included floorplan highlights efficient use of space, practical storage, and versatile sleeping arrangements.
Key Features
| Marina | Eildon Boat Club |
| CAT. | 4 |
| Build | 1975 |
| Slipped | Oct-24 |
| Bedroom | 2 |
| Sleeps | 6 |
| Bath | 2 |
| Engine | 4-Cyl Volvo Penta |
| Living Rooms | 1 |
| Width x Length | 45 x 16.1 ft |
| Levels | 1 |
| Deck | Fixed |
| Renovated | Yes |
Nutcracker represents a solid, well-priced entry into Lake Eildon houseboat ownership, combining proven construction with sensible upgrades and an accessible size.
Enquire now for further details or to arrange an inspection.
Jacqui Oakes 0425 851 942
Chris Smith 0422 658 977

Contact us today

Jacqui Oakes
0425 851 942
Email Jacqui

Chris Smith
0422 658 977
Email Chris
Similar Boats

Interested in the Nutcracker?
Get in touch with us to discuss this or any other boat. We’ll get back to you shortly.





